物件詳細 サンフラワーUSHIKU(1DK)[301号室]ご成約済み
外観(全体)
| サンフラワーUSHIKU(1DK)2.5万円 | |
|---|---|
| 所在地 | 茨城県牛久市中央 3-32-8 |
| 駅徒歩 | JR常磐線/牛久駅 東口 徒歩7分 |
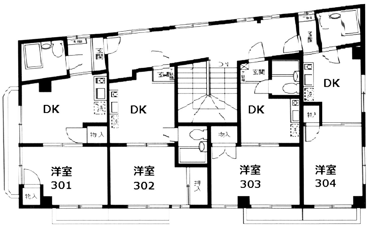
| 間取り | 301号室 1DK(洋4.5 DK4.5) |
| 専有面積 | 301号室 25.085m2 |
| 家賃月額 | 25,000円 |
| 築年月 | 平成3年(1991年) |
| 建物構造 | 鉄骨へーベル造3階建て |
| 部屋の特徴・設備 | ユニットバス、エアコン、室内洗濯置、駐車場(無し:近隣駐車場 月5,000円)、即入居可 |
| 損害保険 | 要(2年間 18,000円) |
| 取引態様 | 仲介 |
| 総戸数 | 7戸 |
| 仲介手数料 | 1.1ヶ月(消費税込) |
| 諸費用 | 管理費・共益費: - 敷金: 1ヶ月(25,000円) 礼金: - 保証金: - 敷引・償却: - |
| 保証会社 | 日本賃貸保証株式会社(JID)利用必 初回保証料 20,000円 更新保証料2年毎 12,000円 |
| 備考 | ★退去時の原状回復費用として室内クリーニング費用のご負担があります。 ★ペット不可。 ★更新手数料は2年毎に新家賃の1ヶ月分。 |



